別墅軟裝設計--華僑城懿德軒豪宅設計動態
發布人:Webmaster發布時間:2017-07-18閱讀數 (2074)
懿德軒位于深圳著名豪宅區華僑城,毗鄰24公頃燕晗山公園、燕棲湖、天鵝湖及多個著名高爾夫球場,區內綠化率高。
別墅軟裝設計--華僑城懿德軒豪宅設計外景圖
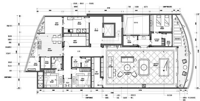
懿德軒占地36萬平方尺,容積率0.68超低密度,32套別墅,單位2900-3300平方尺,四房兩廳,高可拓展至七房兩廳,每戶均有過2000平方尺私家花園,近千尺露臺,客廳樓高約14米,空間廣闊,內設智能電梯,透光雙層地下室,是別墅中的王者,是收藏家眼中的稀世藝術品。
周邊配套:
項目所屬學區:中央教育科學研究所南山附屬學校(初中、小學);
中學情況:華僑城中學;小學情況:華僑城小學;幼兒園情況:華僑城幼兒園、馬榮教育機構華僑城幼教中心、新愛嬰&冠蒙早教中心、華僑城體育中心
酒店:威尼斯酒店 、洲際酒店、奧斯廷酒店、威斯汀酒店、博林諾富特酒店
商業:智慧廣場商業中心、益田假日廣場、歐洲城商業、山姆會員店、沃爾瑪、沙河世紀假日廣場、京基百納廣場、百佳超市、銅鑼灣Shopping Mall、波托菲諾內部商業街區
餐飲:丹桂軒、麥善坊、舞鶴、華僑城食街、酒吧街、普語堂茶社等
銀行:中國農業銀行、深發展銀行、建設銀行、中國銀行、中國工商銀行、交通銀行、招商銀行等
醫院:華僑城醫院、香港大學深圳醫院、深圳濱海醫院(規劃中)
郵政:沙河郵局
公園:歡樂谷、世界之窗、燕晗山公園、錦繡中華、中國民俗文化村
藝術三角:何香凝美術館、華·美術館、OCT當代藝術中心
文化配套:OCT-LOFT 華僑城創意文化園、華僑城·歡樂海岸
【例外軟裝】:用專業打造溫馨宜居的個性居家空間,讓家為您的品位代言!
【例外軟裝】:解讀空間需求的專業軟裝設計公司,合理搭配軟裝配飾,提供專業家居軟性裝飾方案,為您的居家空間私人定制!

點擊咨詢

0755-82567805