深圳南山區香山美墅別墅室內設計新資訊
發布人:Webmaster發布時間:2016-04-13閱讀數 (2452)
香山美墅別墅設計位于深圳市南山區華僑城片區,東面為香山里等高檔小區,東南面為成熟的波托菲諾社區,南面香山西街一路之隔為白石洲,西面為沙河東路及名商高爾夫球場,北面為北環大道,交通便利,地理位置優越。
深圳南山區香山美墅別墅室內設計外景圖
香山美墅后續待開發用地共占地面積約18萬㎡,總建筑面積約70萬㎡,屬于深圳市核心區域非舊改類的大型居住社區。項目現開發用地占地92000平,總建筑面積20萬平,產品類型多樣,含聯排住宅設計、合院住宅設計、疊拼住宅設計、小高層住宅及超高層住宅;其它用地產品為超高層住宅。
香山美墅室內設計統一規劃設計社區公共配套,其中包括社區服務站、社區居委會、社區警務室、社區健康服務中心、公交首末站、商業服務設施及居住小區級文化室。
項目配套
商業:沃爾瑪購物廣場、華僑城體育文化中心、華僑城醫院、波托菲諾商業街;
學校:波托菲諾國際幼兒園、華僑城幼兒園、錦繡苑幼兒園、馬榮教育機構、華僑城小學、華僑城中學、中央科教所南山附屬學校、暨南大學深圳旅游學院;
美術館:何香凝美術館、OCT當代藝術中心、華R26;美術館;
主題公園:歡樂谷、世界之窗、錦繡中華;
酒店:華僑城洲際大酒店、威尼斯皇冠假日酒店、海景奧思廷酒店、城市客棧;
公園:大沙河公園、新塘公園、沙河集團新塘公園;
小區內部配套:社區服務站、社區居委會、社區警務室、社區健康服務中心
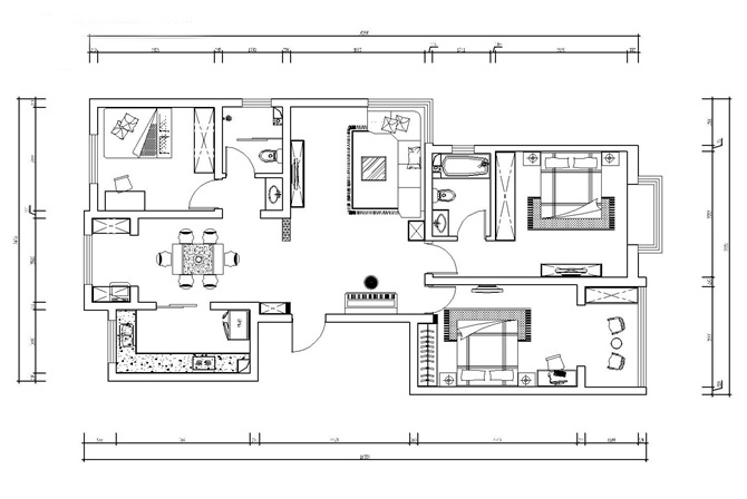
深圳南山區香山美墅別墅室內設計戶型圖
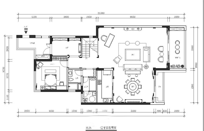
深圳南山區香山美墅別墅室內設計樣板房

點擊咨詢

0755-82567805