深圳香山美墅新別墅室內設計動態
發布人:Webmaster發布時間:2016-06-18閱讀數 (1783)
香山美墅位于深圳市南山區華僑城片區,東面為香山里等高檔小區,東南面為成熟的波托菲諾社區,南面香山西街一路之隔為白石洲,西面為沙河東路及名商高爾夫球場,北面為北環大道,交通便利,地理位置優越。
深圳香山美墅別墅室內設計外景圖
香山美屬于深圳市核心區域非舊改類的大型居住社區。香山美墅統一規劃設計社區公共配套,其中包括社區服務站、社區居委會、社區警務室、社區健康服務中心、公交首末站、商業服務設施及居住小區級文化室。
周邊配套:
商業:沃爾瑪購物廣場、華僑城體育文化中心、華僑城醫院、波托菲諾商業街;
美術館:何香凝美術館、OCT當代藝術中心、華.美術館;
主題公園:歡樂谷、世界之窗、錦繡中華;
酒店:華僑城洲際大酒店、威尼斯皇冠假日酒店、海景奧思廷酒店、城市客棧;
學校:波托菲諾國際幼兒園、華僑城幼兒園、錦繡苑幼兒園、馬榮教育機構、華僑城小學、華僑城中學、中央科教所南山附屬學校、暨南大學深圳旅游學院。
內部配套:
醫療:社區健康服務中心
商業:商業服務設施
人文:居住小區級文化室
其他:社區服務站、社區居委會、社區警務室、社區健康服務中心
公園:大沙河公園、新塘公園、沙河集團新塘公園
學校:南山第二實驗學校、南山第二實驗學校
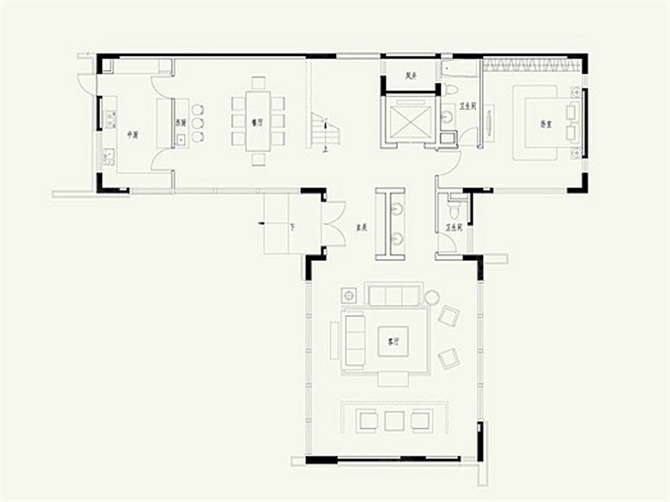
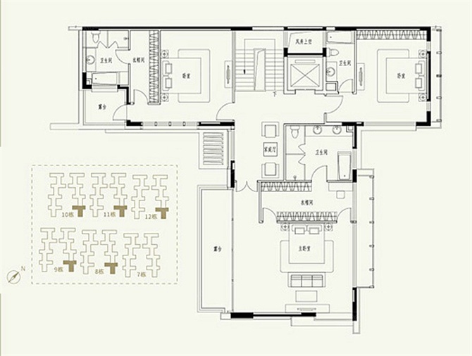
深圳香山美墅別墅室內設計戶型圖
深圳香山美墅別墅室內設計樣板房

點擊咨詢

0755-82567805