南山燕晗山居豪宅新室內軟裝設計動態
發布人:Webmaster發布時間:2016-06-28閱讀數 (1631)
燕晗山居項目位于深圳華僑城北向山腳、燕晗山北麓、華僑城醫院附近。東南兩側被燕晗山包圍,北側為香山東街、燕晗花園一期,西側為華山村住宅小區,社區采用人車分流規劃。機動車輛直接進地下車庫,小區內部為蜿蜒曲折的人行道。未來將做大規模改造:基地南向的OCT LOFT作為藝術家聚集地將繼續發展擴大,北向的廠房已經重新規劃為商業辦公居住一體化的城市綜合組團。結合地鐵2號線的興建,本區域的生活將更加多元化,更加便利。
南山燕晗山居豪宅室內軟裝設計外景圖
1、從華僑城整體片區分部來看,本項目區域依托華僑城優異的生活環境,內在價值比市區內同類規模項目有所提高。
2、小區規劃結合自然地勢依山而建。逐層升高,既避免了周圍道路的不利影響,又與山體環境巧妙結合,融為一體,創造一個與自然共生的社區環境。
3、小區共五棟建筑,相互錯動、圍合,內部為蜿蜒曲折的人行道,整體氣氛幽靜,庭院空間曲折變化,層次豐富,意在營造“庭院深深深幾許”的多層次庭院空間。中心庭院采用木料和石材等天然材料,以水景和裝飾墻等手法營造空間的趣味性,為住戶提供多種不同的空間體驗。
周邊配套:
商業:華僑城洲際大酒店,威尼斯皇冠假日酒店,沃爾瑪購物廣場,波托菲諾商業街;
景觀:歡樂谷,世界之窗,錦繡中華/中國民俗文化村;
公園:燕晗山郊野公園
醫院:華僑城醫院
學校:波托菲諾國際幼兒園、華僑城幼兒園、錦繡苑幼兒園、馬榮教育機構、華僑城小學、華僑城中學、中央科教所南山附屬學校、暨南大學深圳旅游學院;
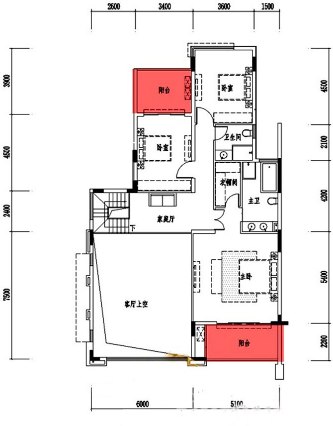
南山燕晗山居豪宅室內軟裝設計戶型圖
南山燕晗山居豪宅室內軟裝設計樣板房

點擊咨詢

0755-82567805