南山區伍茲公寓豪宅室內軟裝設計動態
發布人:Webmaster發布時間:2016-07-21閱讀數 (1732)
伍茲公寓,位于南山區蛇口工業區萬海路和工業二路交匯處,東臨規劃中的望海路(目前為空地,暫作苗圃地使用),南臨南海酒店,西面為碧濤苑、碧濤別墅,西北面為海景廣場,北鄰海上世界停車場。
伍茲公寓是的山海國際項目,盡享海上世界5萬平米國際化商業,5A甲級寫字樓,希爾頓酒店,國際游艇俱樂部,濱海休閑長廊等配套。據守深、港、澳主軸線,大珠三角一小時生活圈,依山靠海,的生態環境,濃厚的國際人文氛圍,豪宅標桿呼之欲出。
南山區伍茲公寓豪宅室內軟裝設計外景圖
美國SBA進行規劃設計,其國際化概念彰顯建筑的尊貴。花費1億重金打造超光感外立面,大量運用low-E玻璃幕墻、金屬幕墻、陶土板和金屬鋁板為主體材質,樹立國際化的,超高檔住宅的品質。從海上看去,三幢建筑在晚上會發出閃爍的光芒,猶如海港上燈塔發出的光。燈光和炫彩將凸顯建筑的頂部,給海上世界帶來獨一無二的節日般的氛圍,并為璀璨的天際線增添色彩。
周邊配套:
幼兒園:小天使幼兒園、海韻幼兒園
中小學:SIS蛇口國際學校、QSI蛇口科愛賽國際學校、深圳日本人學校、蛇口韓國人國際學校
大學:深圳大學
商場:家樂福保利店、花園城中心沃爾瑪、海雅百貨、百佳國際店
醫院:SOS蛇口國際醫院
郵局:中國郵政
銀行:工商銀行、南洋商業銀行、建設銀行
其他:必勝客、漢堡王、賽百味、海上世界酒吧街、南海酒店
內部配套:
伍茲公寓4號樓為私屬會所,將由招商地產旗下私人會所運營商美倫會所統一進行管理與經營。伍茲公寓會所建筑面積約2000㎡,其中首層層高6.5米。以“休閑運動高爾夫”為主題,功能擬打造3個室內模擬高爾夫練習場、屋頂mini高爾夫推桿場、咖啡廳、健身房、瑜伽形體室、恒溫紅酒雪茄房、屋頂露天酒吧、游泳池等休閑娛樂設施。
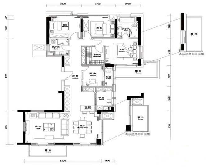
南山區伍茲公寓豪宅室內軟裝設計戶型圖
南山區伍茲公寓豪宅室內軟裝設計樣板房

點擊咨詢

0755-82567805