深圳鹽田梅沙1號豪宅室內軟裝設計動態
發布人:Webmaster發布時間:2016-08-22閱讀數 (1486)
大梅沙區域,東臨小梅沙,西接鹽田港東港區,北靠梧桐山綠色山脊,并與香港隔海相望,深圳市政府規劃東部為:國際級海濱旅游度假勝地、國際級會議展覽中心、國際級海濱居住區。這里不僅僅是休閑度假圣地,還涵蓋商務、人文、生態、財富人士集聚地。
深圳鹽田梅沙1號豪宅室內軟裝設計外景圖
中通水岸位于世界第九大富人灣區--大梅沙核心,占盡大梅沙“太師椅”風水核心位置。緊鄰愿望湖,與萬科國際會議中心、湖心島花園隔湖相望,步行5分鐘可達海濱浴場,尊享山、湖、海三重立體式景觀。
項目建筑、園林及內部裝修設計均由大師親自操刀,戶型可拓展空間較大,建筑布局經過多次嚴格論證,既保證了人群所重視的私隱性、舒適性,又保證了每一棟樓都三面親水,戶戶景觀俱佳。
周邊配套:
的配套:深圳唯一的總部海岸(主題式旅游配套:東部華僑城主題公園、大梅沙海濱公園、2個高爾夫球場(世紀海景高爾夫、天麓云海谷高爾夫)、2個游艇會(大梅沙游艇會、萬科浪琴游艇會)。
國際級商務:萬科國際會議中心、直升機停機坪、國際五星級的喜來登大酒店、茵特拉根大酒店、京基五星級酒店
娛樂:大梅沙國際游艇俱樂部、酒吧街。
教育:步行2分鐘可達深圳外國語學校鹽田分校(小學、初中部),車行5分鐘可達深圳外國語學校鹽田分校(高中部)。
醫院:梅沙醫院、鹽田區環境衛生管理局
公園:大梅沙海濱浴場
內部配套:
花園:園林花園
商業:樓棟底層基本商業配套
公園:月亮廣場、鵝公岌社區公園、東海岸運動公園、東海岸社區公園、巨石巖畫廣場
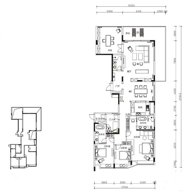
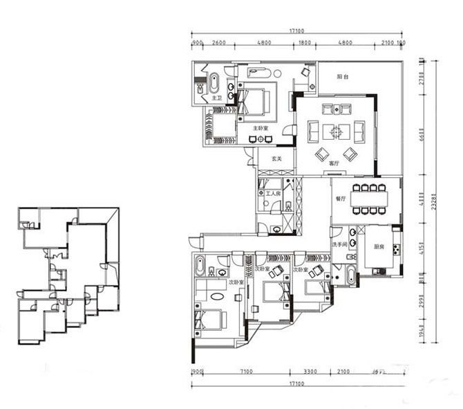
深圳鹽田梅沙1號豪宅室內軟裝設計戶型圖
深圳鹽田梅沙1號豪宅室內軟裝設計樣板房

點擊咨詢

0755-82567805