龍城壹號別墅室內設計新動態
發布人:Webmaster發布時間:2017-02-07閱讀數 (1524)
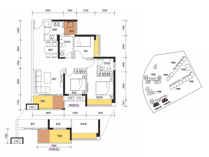
龍城壹號別墅位于龍崗中心城龍平西路與黃閣路交匯處西側,總占地面積為34498.73㎡,總建筑面積為156880.47㎡。龍城壹號分兩期建設,其中龍城壹號一期用地面積為19212.23㎡,主要包括3棟地上32層的高層住宅建筑,分別為1號樓、2號樓、3號樓;
龍城壹號別墅室內設計外景圖
龍城壹號二期用地面積為15286.50㎡,主要包括1棟地上21層高層住宅建筑和4棟地上5層住宅建筑,其中高層住宅樓為4號樓,4棟多層住宅樓分別為5號樓、6號樓、7號樓和8號樓。
周邊配套:
教育:深圳中學龍崗初中部、龍城高級中學、龍崗實驗學校、依山郡小學、蘭著學校
幼兒園:依山郡幼兒園、東方沁園幼兒園
綜合商場:天安數碼城街區商業、華潤萬家、海雅百貨、百易特超市、天虹商場、金來福購物廣場
醫院:龍崗區人民醫院、龍城醫院、龍崗區婦幼保健院、龍崗中醫院
郵局:中國郵政龍崗天安數碼城代辦所
銀行:建設銀行、工商銀行、農業銀行、民生銀行、招商銀行
文體配套:科技館、青少年宮、公共藝術館及書城三城一館建設中、大運中心、龍崗會展中心
內部配套:
教育:1棟3層9班2400㎡幼兒園;
商業:2層2396.55㎡商業裙樓;
學校:依山郡小學、深圳中學龍崗初級中學
龍城壹號別墅室內設計戶型圖
龍城壹號別墅室內設計樣板房

點擊咨詢

0755-82567805