深圳鯨山九期別墅軟裝設計新資訊
發布人:Webmaster發布時間:2015-09-25閱讀數 (1933)
鯨山覲海,位于環境優美、國際氣息濃厚的鯨山別墅區內,屬于半山豪宅片區。整個地塊地勢北高南低,大致分為兩塊,落差較大,具有鮮明的山地特色。坐擁大南山,面朝深圳灣,自然景觀優秀。
半山豪宅片區:世界只有一個蛇口,深圳只有一個半山。26年沉淀,半山是深圳歷史悠久的豪宅區,實現了自1994年以來的深圳租賃回報17連冠,是國際人士多的豪宅區,是深圳產業領袖聚集的豪宅區。30年來,蛇口半山區已經不單單印證著蛇口作為改革開放前沿而崛起的歷程,而是特區在改革開放背景下逐步邁向現代化和國際化的一個縮影。30年的沉淀,讓半山成為深圳為傳統的藏富美域。從1984年碧濤別墅問世,到龜山別墅、鯨山別墅,從美倫會所,到半山海景別墅、泰格公寓、蘭溪谷,既歷經日月洗禮,又任憑時尚升華,終成就了深圳豪宅正宗血統的原始血脈。
兩翼:地處蛇口半島的南端,依山傍海,處于兩翼——前海灣、太子灣國際郵輪母港+海上世界城市綜合體的中心位置。前海灣片區,政府將投資400億,規劃為深港現代服務業合作區,輻射區包括蛇口半島、后海中心區等海陸域片區,是未來大珠三角的“曼哈頓”,是國際資本進入中國內地的橋頭堡和國內企業走向世界的跳板,外溢經濟價值無可估量。太子灣片區,招商局獨家投資過百億元,建成以后將是華南地區大的郵輪母港,成為深圳通連全球的唯一的“海上門戶”。
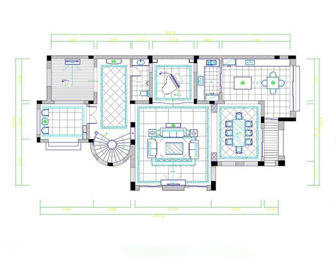
深圳鯨山覲海一層戶型圖
深圳鯨山覲海樣板房
配套信息:
周邊頂級配套:太子灣國際郵輪母港、海上世界、招商局廣場、金融中心二期、文化藝術中心、希爾頓酒店、海上世界廣場、濱海公園、蛇口國際學校等;
地鐵:靠近蛇口2號線海上世界站、赤灣港站
公交(蛇口碼頭站):K113、113、204、K204、226、332、329、N4、77、70、K105、機場10線、J1快、B687;
公交(蛇口科技大廈):113、226、328、K113路等;
高速公路:南海大道、興海大道、港灣大道;
教育:蛇口國際學校、育才中學、半山社區中心、半山小學等;
醫院:深圳市蛇口聯合醫院;
銀行:招商銀行、建設銀行、中國銀行、農業銀行、深發展銀行等;
商超:百佳超市、沃爾瑪購物廣場
公園:南山公園、小南山公園、太子灣、海上世界、四海公園

點擊咨詢

0755-82567805