【新簽約】中信紅樹灣室內軟裝設計
發布人:Webmaster發布時間:2016-09-06閱讀數 (2640)
中信紅樹灣,地處深圳灣填海區,位于南山區沙河東路與白石路交匯處東南角。東面是擬建中的城市中央花園,西面毗鄰郁郁蔥蔥的沙河高爾夫球場,南面眺望深圳灣水天一色,東北面遠觀世界之窗、錦繡中華、歡樂谷。自然景觀和人文景觀豐富,地理位置十分獨特,被譽為未來城市的“地王”。
中信紅樹灣依托獨特的區位優勢和自然資源,打造深圳頂級的高爾夫物業。以生態、健康為主題,營造濱海特色的庭院景觀,做到既有外部自然景觀又有內部庭院風光,塑造質量高尚、健康人居、尊貴典雅的產品形象,在住宅市場的浮躁中不失傳統以求舒適大度,而在居住觀念的傳統中則力爭創新以求脫穎而出,引領居住潮流,升華現代居住文化,凸現中信樓盤的無盡現代高尚文化內涵。
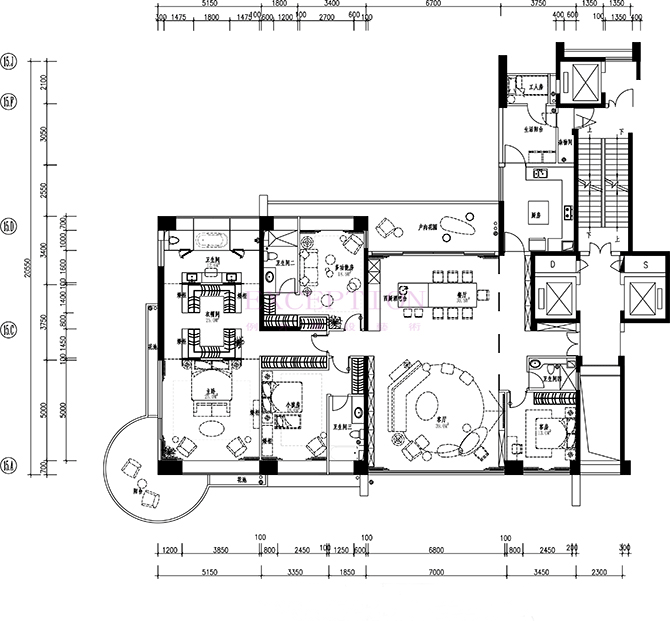
【新簽約】中信紅樹灣室內軟裝設計平面圖

點擊咨詢

0755-82567805