【新簽約】深圳振業城五期室內軟裝設計
發布人:Webmaster發布時間:2016-12-14閱讀數 (2304)
振業城(振業橫崗翠地星城)位于深圳市龍崗區橫崗鎮六約,南臨深惠路,北接環城北路,東為梧桐路,西為深峰路。規劃總占地面積416765.9平方米,建筑總面積541796平方米,將建成深圳市有史以來大的獨院住宅社區。根據規劃,總共將有約千套的獨院住宅(Townhouse)、疊加住宅、豪華復式等崛起于梧桐山北麓,是真正的豪宅巨無霸。
深圳振業城五期室內軟裝設計外景圖
該項目地形起伏較大,總體布局上結合地形,利用1、2#地塊中部洼地成湖,湖西岸地勢較高處設計為做島式坡地住宅,湖東、南、北三面地勢較為平坦處設計為七個島式組團,形成“七島一湖”的總體布局形式。住宅分級設置,以湖為景觀中心,按照景觀等級,分別布置獨立住宅、獨院住宅及雙層疊加住宅。
五期為純大戶小高層、高層平層和復式,面積在200-350平方米,兩梯兩戶到兩梯一戶;前后通透,南北朝向,通風效果好;戶型方正實用,功能分區合理,動靜合理;平層附送雙層挑高露臺,別墅花園空中化;復式雙層挑高陽臺,超大尺度的空中私家花園,雙層6米挑高客廳,專設多功能廳;視野永無遮擋,可觀南北湖和梧桐山景。
周邊配套:
中小學:橫崗中學(省一級學校)、橫崗中心小學(省一級學校)、四聯小學、六約小學、梧桐學校(九年義務教育)
綜合商場:龍洲百貨、天和百貨、新世界購物廣場、布吉沃爾馬、金海馬家私商場、橫崗計算機城
醫院:橫崗人民醫院(國有綜合性二級甲等醫院)、天安醫院
其他:君逸酒店、圣德堡酒店
小區配套:華潤、高級中學、1所九年制學校、3所幼兒園
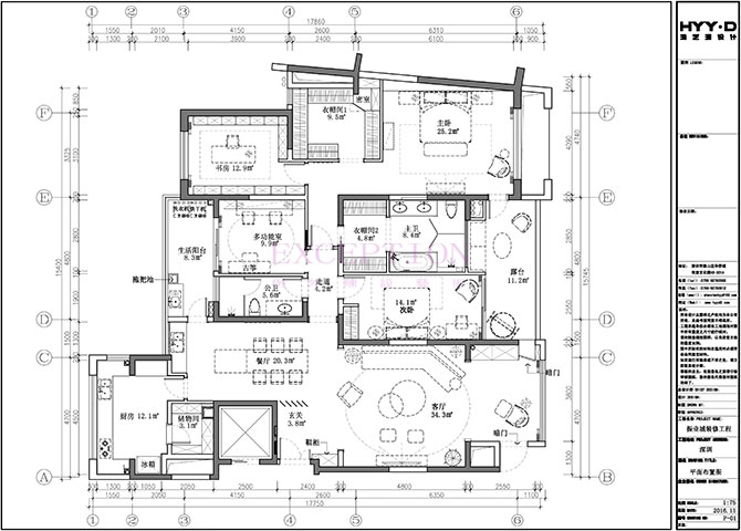
深圳振業城五期室內軟裝設計戶型圖

點擊咨詢

0755-82567805