潤恒御園別墅軟裝設計新資訊
發布人:Webmaster發布時間:2015-09-29閱讀數 (1521)
|
潤恒御園位于寶安區新安街道創業西路西南側,寶安中心區N27區羅田路與金科路交匯處,東北臨興華路深業新岸線、西北臨萬科住宅社區、東南面、西南面均臨城市次干道,與寶安區體育中心和行政中心板塊為鄰。該宗地號為A001-0122,地塊總用地面積72500.38平方米,總建筑面積76049.5平方米,計容積率建筑面積43500平方米。擬投資9200萬元人民幣。規劃建成包括雙拼多層、雙拼低層和聯排低層三種戶型以及居委會和會所。
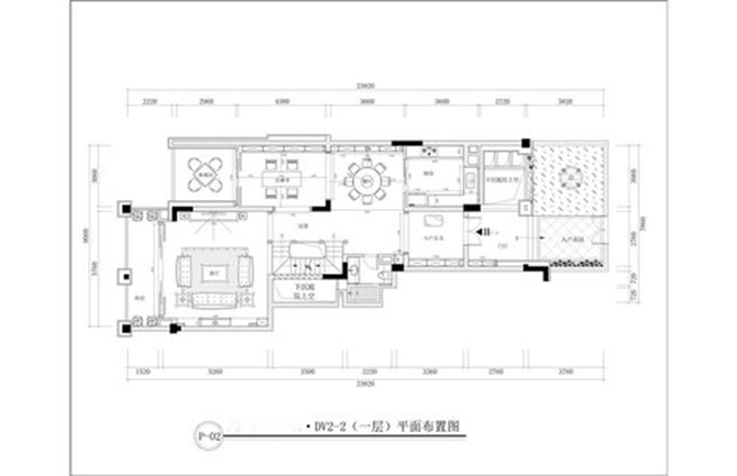
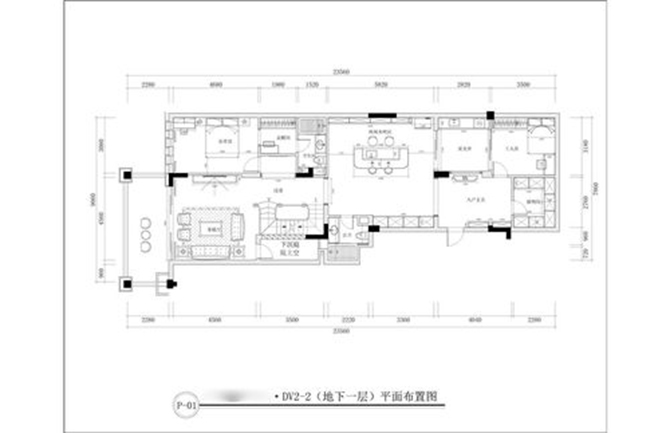
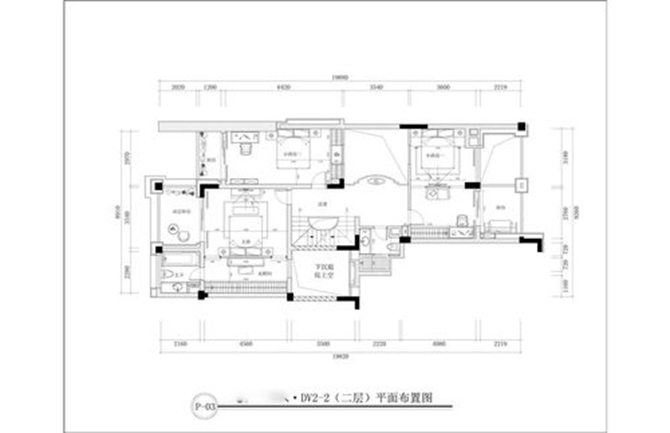
潤恒御園別墅軟裝設計戶型圖
潤恒御園別墅軟裝設計樣板房
周邊信息
幼兒園:機關幼兒園、小神童幼兒園、金成時代雙語育兒園
中小學:寶安中學附屬小學、中英中學、新湖中學
大學:深圳大學
商場:華潤萬家、沃爾瑪、人人樂、蘇寧電器、天虹商場、賽格數碼廣場、人人樂百貨、國美電器。
醫院:寶安中心醫院、西鄉醫院、同仁醫院、春天醫院
郵局:中國郵政銀行:深圳發展銀行、深圳工商
銀行、深圳農村信用合作社、廣東發展銀行
其他:寶安市民廣場、體育館、游泳館
小區內部配套:兒童游樂場所、老人休閑會所、花園等
交通狀況
周圍交通:東北臨興華路深業新岸線;
西北臨萬科住宅社區;
東南面、西南面均臨城市次干道。
公交站點:深業新岸線。
公交路線有:368路、632路、766路、M200路
|

點擊咨詢

0755-82567805